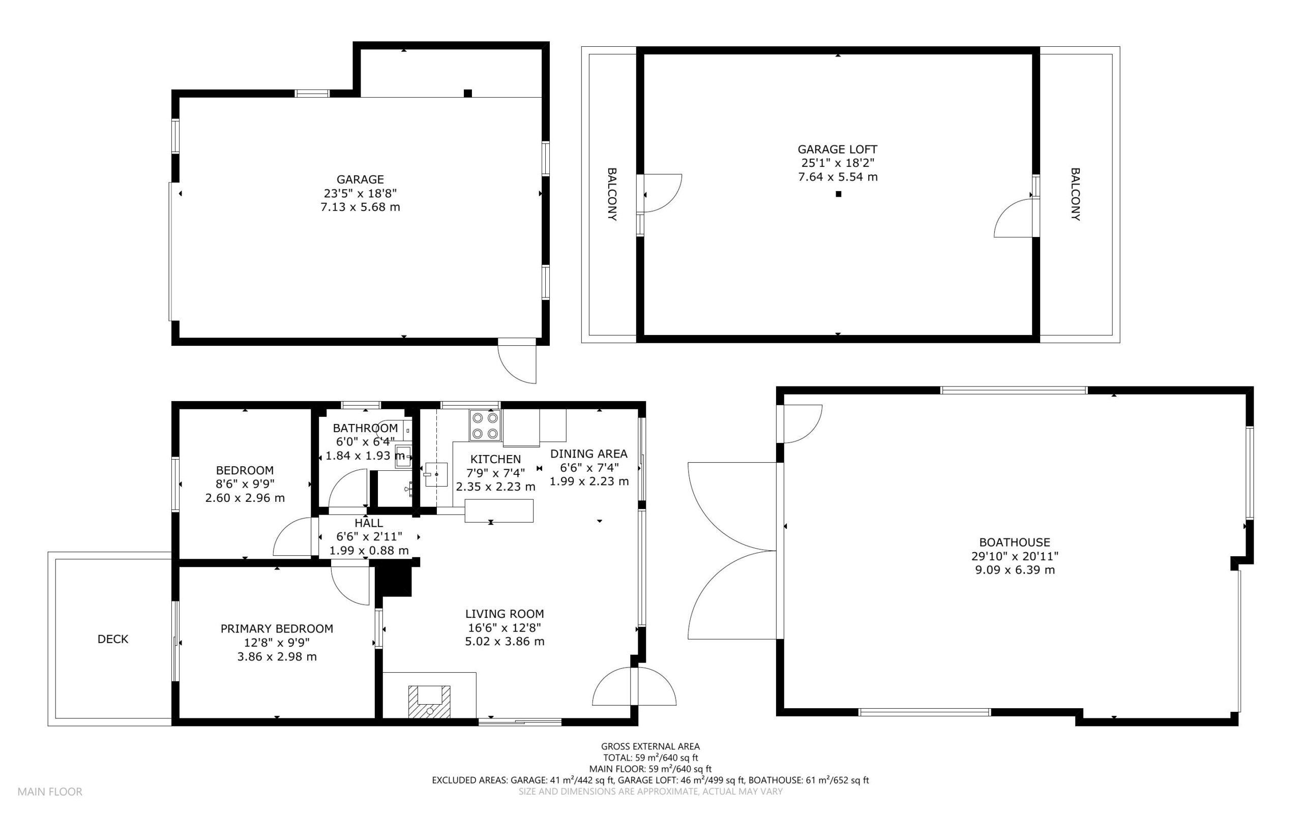
Waterfront Cottage on the Severn River. Enjoy year-round living at this charming four-season cottage nestled along the Severn River, offering 177 feet of pristine shoreline. Situated on a private, year-round road, this property blends comfort, function, and natural beauty . The home features walkouts from both the living room and primary bedroom to a spacious deck overlooking the water, perfect for relaxing or entertaining. The deep shoreline offers excellent swimming and fishing right off the double docks. Included on the property is an oversized insulated garage with a loft, ideal for additional storage or conversion into guest space. A dry boathouse with a marine railway makes boat storage a breeze, while a waterside bunkie provides cozy accommodations for visitors. Additional outbuildings include a wood shed and tool shed, adding to the cottages convenience and versatility. Whether you’re seeking weekend escapes or a year-round retreat, this riverfront gem offers privacy, comfort, and endless waterfront enjoyment. *4390 Marr Lane vacant adjacent lot is also being offered for sale and must close prior to the closing of 4376 Marr Lane.* and has EP on it
SEVERN RIVER
4376 MARR LANE
SEVERN, ON
P0C 1M0
MLS®#: S12265167
$999,000
640 SF
0.794 A
N
177' F
Features & Details
- Property Type: RESIDENTIAL
- Property Sub-type: House
- Property Style: BUNGALOW
- Bedrooms: 2
- Bathrooms: 1
- Waterfront: YES
- Island: NO
- Road Access: PRIVATE YEAR ROUND
- Boathouse Type: DRY W/MARINE RAILWAY
- Bunkie: YES
- Shed: YES
- Garage: YES, DETACHED & OVERSIZED
- Exterior: CEDAR
- Driveway: FRONT YARD
- Roof: METAL
- Heat: PROPANE, FIREPLACE
- Zoning: SR3 EP
1 of 24
Click to Enlarge
Click to Enlarge
Click to Enlarge
Click to Enlarge
Click to Enlarge
Click to Enlarge
Click to Enlarge
Click to Enlarge
Click to Enlarge
Click to Enlarge
Click to Enlarge
Click to Enlarge
Click to Enlarge
Click to Enlarge
Click to Enlarge
Click to Enlarge
Click to Enlarge
Click to Enlarge
Click to Enlarge
Click to Enlarge
Click to Enlarge
Click to Enlarge
Click to Enlarge
Click to Enlarge